























“Deze minder bekende hortensia, Hydrangea aspera ‘Macrophylla’ heeft twee soorten bloemen: witte opvallende, steriele lokbloemen, die beperkt blijven tot de rand en in het midden massa’s kleine, fertiele bloemen met bijna fluorescerende lila-blauwe meeldraden. En juist deze hele kleine lila bloempjes bevatten de nodige nectar en stuifmeel voor o.a. vlinders en bijen. Dit in tegenstelling tot de veel gebruikte, grote bolvormige hortensiasoorten, zoals H. macrophylla en de H. arborescens ‘Annabelle’, die uitsluitend uit steriele lokbloemen bestaan.

H. aspera ‘Macrophylla’ heeft vanwege het grote, ruw behaarde blad een vochthoudende bodem nodig in koele halfschaduw en wordt uiteindelijk ruim twee meter hoog. Een hele sierlijke hortensiasoort, waar zowel wij als allerlei insecten in de zomermaanden van kunnen genieten.”
Juist omdat we in deze coronazomer meer tijd besteden aan huis, tuin of balkon, deelt onze Plantenkennisdocent Ingrid van der Ven elke vrijdag een plantentip. Meer over dit plantengeslacht behandelt ze tijdens de lessen Bladverliezende heesters van beide PlantenKennis-cursussen.
Meer over dit plantengeslacht komt aan bod tijdens de lessen Bladverliezende heesters van zowel de cursus Plantenkennis Compleet als Plantenkennis Basis.

Voordat nieuwe docenten starten met een eigen groep, betrekken we hen bij onze activiteiten en lopen ze mee met andere lesgroepen. Afgelopen februari kwam Lars al even buurten bij de schetsende studenten tijdens de consumentenbeurs TuinIdee en in mei zou hij in de lezingenserie Podium Boskoop komen vertellen over zijn visie op ontwerpen voor stadstuinen, zijn specialisme. Door de coronamaatregelen kon dat niet doorgaan, in plaats daarvan maakte hij die maand zijn debuut als docent Tuinarchitectuur.
“Het was gelijk improviseren, want de eerste bijeenkomsten gingen online, via MS Teams. Het schijnt erbij te horen in het onderwijs: de leraar die z'n vak beheerst, maar stuntelt met de videorecorder. Zo voelde het bij mij ook de eerste les ;-). Maar met elkaar kwamen we eruit en de tweede en derde keer gingen meteen al veel soepeler. Met de docenten hadden we afgesproken dat de online-sessies geen vervanging zouden zijn van de fysieke klassikale lessen, maar vooral om huiswerk te bespreken, vragen te beantwoorden en studenten te inspireren. Een goede keuze en voor mij een prima manier om te studenten te leren kennen en te zien waar ze mee bezig waren."

"Ik heb ruime ervaring als ontwerper op diverse schaalniveaus, met een duidelijke specialisatie in de tuinarchitectuur. Sinds vijftien jaar run ik mijn eigen eenmanszaak Veenboer Tuinarchitectuur en heb ik mij gespecialiseerd in het ontwerpen van kleine stadstuinen. In de loop der jaren heb ik echter ook villatuinen, schoolpleinen, festivaltuinen, een tuinbank en een hottub ontworpen. Zelf heb ik twee tuinen, één bij ons huis en een volkstuin. De ene tuin is op zand en de andere op zware klei. Mijn ervaringen met die twee heel verschillende bodemsoorten, zal ik zeker gebruiken tijdens mijn lessen.”

Adri Voorwinden is sinds 2004 zelfstandig landschapsontwerper met een eigen bureau voor ruimtelijke vormgeving en landschap, gespecialiseerd in natuurinclusief ontwerpen en het daarmee vergroten van de biodiversiteit. “Het Nederlandse landschap ligt mij na aan het hart. Ik vind het heel boeiend qua ontstaansgeschiedenis en hoe het zich door de eeuwen heen heeft ontwikkeld en aangepast. De mens speelt hierbij natuurlijk een grote rol. Ik vind het belangrijk dat we zorgvuldig omgaan met ons landschap, met kennis, aandacht en zorg voor alles wat er groeit en bloeit."

"Bij elke ontwerpopgave, hoe klein ook, start ik vanuit het landschap. Hoe is dit gebied ontstaan? Wat groeit hier van nature? Hoe is de samenhang met de omgeving en welke natuurlijke invloeden kunnen we benutten? Dat is voor mij de basis, daarna volgen de vorm en functies. Bij elk project streef ik ernaar natuurontwikkeling toe te voegen en/of de biodiversiteit te vergroten. Mijn opdrachtgevers zijn o.a. gebieds- en projectontwikkelaars, delfstofwinners en natuurorganisaties. Ik kijk er naar uit nu mijn ervaring te kunnen delen. Ik herken mij in wat ik lees, zie en hoor bij de OntwerpAcademie – het is voor mij een goede plek om mijn visie over te brengen: de noodzaak om vanuit het landschap te denken. Heel waardevol en leerzaam vind ik de workshops didactiek van Tjitske Hoekstra en het brainstormen met collega-docenten. In september start ik met een eigen groep!”
Naast de vakopleidingen Tuinarchitectuur, Plantenkennis en diverse groene cursussen, organiseren we vakexcursies, bijeenkomsten, groene evenementen rondom de SchetsKeet en lezingen zoals PodiumBoskoop. Daarnaast coördineren we StageProjecten als onderdeel van ons opleidingsprogramma. Dit betekent dat wij continu op zoek zijn naar gepassioneerde docenten, praktijkbegeleiders en docenten/onderwijskundigen, die een bijdrage willen leveren aan ons onderwijs. Kijk eens op onze vacaturepagina, misschien is er een functie bij die past bij jou!
Informatie is nog nooit zo bereikbaar geweest als nu. Internet en vele andere media staan vol met info. Maar helaas is er weinig controle ten aanzien van de kwaliteit, zoals dat met officiële publicaties wel het geval is. De willekeur aan schrijfwijzen van plantennamen is enorm. Op het eerste oog lijkt dit misschien helemaal niet erg, maar als je je voorstelt dat verkeersborden willekeurig zouden worden toegepast, dan is het begrijpelijk dat het tot grote verwarring kan leiden.

Wetenschappelijk namen worden vanuit vaste regels samengesteld. Dit noemen we de nomenclatuur, ooit bedacht en uitgewerkt door Carolus Linnaeus, de beroemde achttiende-eeuwse botanicus. Zijn binaire nomenclatuur, ofwel tweeledige naamgeving, zorgde door de universele schrijfwijze en taal (voornamelijk Latijn) voor internationaal erkende, wetenschappelijke plantennamen. Deze vorm van naamgeving wordt nu nog steeds wereldwijd gehanteerd. Plantennamen staan officieel geregistreerd in een ‘wetboek’, de ICBN (International Code of Botanical Nomenclature).

Kortom, als een wetenschappelijke plantennaam op de juiste manier geschreven is, weet iedereen over de hele wereld om welke plant het gaat. Heel specifiek. En dat is natuurlijk heel erg handig. Maar het luistert wel nauw.
Hoog in de hiërarchie van de indeling van het plantenrijk, zijn de groepen aangegeven door vaste eindlettergrepen, bijvoorbeeld bij plantenfamilies en ordes. Lager in de hiërarchie spelen hoofdletters, kleine letters, aanhalingstekens en hybride tekens (x) een belangrijke rol en geven hiermee de taxonomische rangorde en het verwantschapsniveau weer. De spelling maakt duidelijk of het gaat om een geslacht, een soort, een cultivar of een kruising. Dit zijn de meest gebruikte namen uit de hele taxonomische stamboom. En hier gaat het in de praktijk vaak mis.

Een plantennaam bestaat standaard uit twee belangrijke delen: de geslachtsnaam met daarachter de soort. Het geslacht wordt altijd met een hoofdletter geschreven en de soort altijd met een kleine letter. Samen is dit de soortnaam.
Bijvoorbeeld: Cornus florida
Als het gaat om een cultivar, een gecultiveerde variëteit, kortweg cv., dan wordt de cultivarnaam hierachter gevoegd, tussen aanhalingstekens en met een hoofdletter.
Bijvoorbeeld: Cornus florida ‘Rainbow’
Bij natuurlijke ondersoorten wordt dit door een afkorting met punt weergegeven (f.=forma, var.=variëteit en ssp.=subspecies), gevolgd door een kleine letter, zonder aanhalingstekens.
Bijvoorbeeld: Cornus florida f. rubra.
Kruisingen tussen geslachten of soorten worden aangegeven met een hybride teken, een x. Bij kruisingen tussen geslachten staat de x vóór de geslachtsnaam. Bij kruisingen tussen soorten staat de x achter de geslachtsnaam.
Bijvoorbeeld: xFatshedera lizei (kruising tussen de twee geslachten Fatsia en Hedera)
Bijvoorbeeld: Hamamelis x intermedia (kruising tussen twee soorten binnen het geslacht Hamamelis)

Als personen hebben wij een voor- en achternaam, beide met een hoofdletter geschreven. Plantennamen worden vaak beschouwd als een soort voor- en achternaam en vervolgens ten onrechte op dezelfde manier geschreven: alle naamdelen met een hoofdletter. Als dan ook aanhalingstekens, hybride tekens en/of soortnamen worden weggelaten, is de taxonomische rangorde niet meer herkenbaar. En juist deze rangorde zorgt ervoor dat je planten kunt herleiden en verwantschappen kunt herkennen binnen het enorme plantenrijk.
Daarom is het belangrijk om plantennamen correct te schrijven. Vooral als professionals in de groensector. Als we dezelfde taal spreken, kunnen we elkaar beter verstaan. Wereldwijd.
Leer meer over taxonomie, nomenclatuur en de betekenis van plantennamen tijdens de cursussen Plantenkennis Compleet en Plantenkennis Basis.

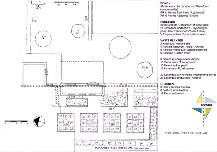
Het beplantingsplan van Arjo Boersma valt op door de zorgvuldige balans waarbij hij ook goed rekening heeft gehouden met de bestaande beplanting. Een slim concept als oplossing voor de uiteenlopende wensen van de opdrachtgever, vormde de basis.

De tuin naar binnen halen en het comfort van de woonkamer naar buiten brengen. Zo begint Arjo zijn toelichting op zijn concept. Hij heeft gespeeld met de toenemende populariteit van de tuinkamer of serre. Omdat dit juist niet in het wensenpakket voorkwam, draaide hij het om en verdeelde de tuin in drie ‘kamers’, qua sfeer en beleving aansluitend bij de verschillende wensen van de familie. De tuin achter het huis is vooral bedoeld als actieve leef- en speeltuin. Aan de rechterzijde bevindt zich een verhoogd terras en bloementuin. Aan de voorzijde is de tuin meer formeel ingericht met bloembakken van cortenstaal als blikvanger. Een erg leuke en slimme vondst om de gewenste functies te vertalen naar drie zones in de tuin.

Arjo heeft een overzichtelijk ontwerpplan afgeleverd in een heldere lay-out en met goed verzorgd tekenwerk. Bijzonder vind ik zijn nauwkeurige beplantingsplan en uitgebreide beplantingslijst. De beplanting laat hij heel goed aansluiten bij de gewenste sfeer en uitstraling van de drie zones. Juist door heel precies de beplanting te kiezen, wordt de identiteit van elke tuinkamer versterkt. De achtertuin bestaat vooral uit een speelveld en een paar zorgvuldig gekozen kleine bomen voor natuurlijke schaduw. De voortuin is strak en symmetrisch met in elke plantenbak Japanse hulst omgeven door lavendel.
De zijtuin is een natuurlijke border, weelderig en kleurrijk met planten als Salvia microphylla en Achilla ageratum en verschillende grassen. Kortom, een zeer compleet, duidelijk en leesbaar beplantingsplan, inclusief bloeischema. De geschetste impressie geeft een idee hoe het geheel er uit kan komen te zien. Een lust voor het oog.”

Medebeoordelaar Dolf Houtman:
“Ik vind het tekenwerk en de presentatie van Arjo heel netjes. De plantschema’s zijn goed te lezen, de lay-out is keurig verzorgd en het ziet er professioneel uit: een overzichtelijk plan, heldere tekenwijze, functionele lay-out. Wel vielen mij een aantal schrijffouten op in het plantschema: zo schrijf je laurocerasus aan elkaar en niet los en Kniphofia is met een f en niet met een v.”